Before tour: the ? room
This time, dear readers, you get to tell me what the post’s featured room is. Because we live here, and we don’t know.
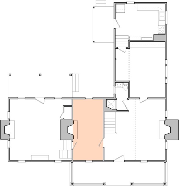
The ? room is located immediately adjacent to the front door, nestled between the living room and the library. It has identical dimensions to the west bedroom above it, 9′-6″ wide and a little over 19′ long. At the south end of the room, opposing doors define the path to the library. On the west side of the room is a fireplace with a mantel that matches the one in the living room next door. There’s a tall window on both the north and south wall, though both are shaded by porch roofs, resulting in a space that’s dimmer than you’d expect.
The walls are covered in vinyl wallpaper with hand-stenciled patterns. Of particular note is the rendition of a George Washington inaugural button that the previous owner placed over the mantel. It can’t stay forever; the plaster beneath the wall paper is crumbling and will need to be removed and replaced. The ceilings are wide planks with seams hidden by batten strips, the same way they’re treated in the living room. Somewhere along the way, new hardwood floors were installed over the original 1754 floor boards – and God killed a kitten.
At one corner of the room is an access hatch that leads to the dead space below the stairs. You can’t get into it now because the oak floors prevent the door from swinging. But I’m holding fast to the conviction that there’s a sack of priceless colonial booty stowed away down there that will finance an early retirement into a life of leisure as the new Baron of Inchdrewer. But short of that, I suppose we’ll need to find a good use for this space, and I’m interested to hear what you think. So far, the room’s most useful purpose was to act as a temporary repository for the accumulated junk that we unearthed during move-in and wondered, “Why in God’s name do we own this, and why are we wasting energy to move it?” I’m looking at you, ceramic basset hound door stopper.
So what’ll it be? Formal dining room? Office? Guest room? Or something else?
Cast your vote below.



Very fun blog – and interesting house. I’ll be watching to see if my vote wins (office/study)
I clicked the wrong button. But now, since I’m now logged as other, I vote: smoking room. A couple fat leather chairs, dark paint, and some kind of mini-fridge sized humidor in the corner should do the trick. And something like this:http://www.wildlifewonders.com/frenchbulldogsculpture.html (bronze is good, but 3′ instead of 3″) to go with your basset hound thing.
Stop the voting…we have a winner.
Hahahaha!