“The people want sexy.” – Weezie
Neighbors, if you ride by our place and find my head impaled on a fence post, my wife put it there, and it’s because of the dishwasher. More precisely, the imaginary future dishwasher that I continue to assure her I’ll put in “soon”. The specificity of that install date is not popular around here, hence the concern for my physical safety.
You see, my honey-do list is more intense than most. Among the usual “change the upstairs light bulb” and “mow the lawn” directives, my list includes things like: “build a kitchen.” I love getting my hands dirty, and there are few things I find more satisfying than building something I’ve designed with my own two hands. The problem is that I’ve only got two of them, rather than the 16 or 18 my list demands.
My main excuse for lack of progress on the kitchen is that I’m embroiled in a battle with an awful client at the moment. He occupies nearly all of my free time because he’s indecisive at best and paralyzed by doubt at worst. He demands that I rework and redraw and reconfigure, never satisfied, always convinced that there’s a better solution that hasn’t been explored yet. His standards are nearly impossible to meet, and I worry that I’ll never make him happy.
My name is Reid Highley, and I’m my own worst client.
Architects working for themselves generally divide into two camps. The first uses self-designed projects as a release valve for pent-up frustrations, a chance to whip out all the harebrained ideas they’ve had rejected by clients (“I can’t believe they didn’t go for the bedroom in a box on wheels!”), and combine them into one orgiastic architectural hodgepodge.
The other camp, the one I fall into, recognizes this impulse and traps themselves in an endless cycle of redesign in an attempt to ensure that the built design is the “right” one, well-edited and just so. I feel tremendous pressure to make this room special. This is our forever kitchen, and our first attempt at a serious interior project at the Ordinary House. I’ve got a blog audience and lots of neighbors watching, in a town where I hope to do plenty of business as an architect. And the first kitchen I designed for myself ended up in a magazine and a book. But seriously, no pressure.
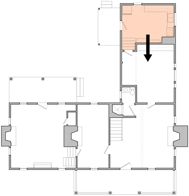
So without any further ado, and at risk of embarrassing myself, I’m going to show you where I am with the design, beginning with the floor plan. As you may recall, we’re making a big switcheroo, moving the kitchen from it’s current location up to the existing dining room.
This move makes sense for a number of reasons. First, the existing kitchen is down a small flight of steps. Going up and down them gets a bit tedious, especially since we spend most of our time in the living room. Having the kitchen on the same level as the living room, and immediately adjacent to it, will put our primary activity spaces in close proximity. Second, the existing kitchen begs to be a mud room/laundry room. The back door, our main entry and exit point from the house, is there. Plus, the current washer and dryer location underneath the front porch doesn’t inspire frequent laundering.
And, third, since we aren’t frequent formal diners, we feel that the dining space is better utilized as a blank canvas for our shiny new cuisine. A nice bonus to this arrangement is that we won’t be without a kitchen while the renovations are underway.
One variable that Weezie and I agreed on early in the process was that we wanted an eat-in kitchen with a big farm table at its center, rather than an island. With that in mind, I began to draw and draw and draw:
After drafting these schemes and perhaps fifty others, the layout fell into place, organized along two major axes.
The kitchen sink had to go below the group of windows on the east side of the room. The table and refrigerator are likewise centered on these windows. In the other direction, the door to the living room, the long axis of the table and the range are aligned. There’s good separation between appliances, scads of counter space, and plenty of room to circulate around the table, even if people are sitting there. Full-height pantry cabinets will flank the fridge, and the dead space behind it will conceal some new plumbing.
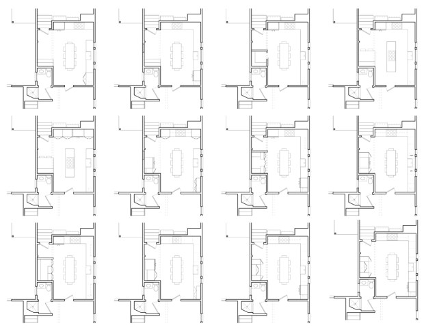
When you take that plan, make a billion little decisions, and turn it into a computer model, it ends up looking something like this:
There are lots of place holders here, and I know the design will evolve as the room comes together, but this gives you the gist of what we’ll end up with. My wife insists that people want sexy…and that’s how sexy begins.







She’s right….
It all makes sense, except: I would put the laundry where the dirty laundry is, ie, upstairs.
Once there are little Highleys tripping around, there will be huge amounts of laundry and dragging
it all downstairs and through the kitchen and down again into the mudroom will be a huge chore. Doing the laundry at night as you’re putting kids to bed or putting yourselves to bed is
another thing altogether, not even a chore. May not be feasible, of course, but we did it in our
Brooklyn brownstone on the fourth floor and it was a lifesaver.
I agree entirely on the upstairs laundry location. Unfortunately, the only way we could pull it off is by stealing some space from the master bedroom. Even if we were willing to sacrifice the square footage, I’m not sure the spin cycle would be conducive to restful sleep! One thing that may help: since the master bedroom is directly above the (existing) kitchen, I’ve given thought to putting in a laundry chute between the two rooms. That way, we could at least avoid having to haul the laundry downstairs. It would even be historically accurate – when Peter Taylor owned the house, he noted that there was a dumbwaiter in that spot. Why you’d need a dumbwaiter between the kitchen and master is an altogether different question! Thanks for reading.
I also advocated for the washer/dryer to be on the second floor. Even if we could find a place for it, my husband made the very good point that if there were any hose leak or overflow, our 250-year-old floors would not be so happy. So, I’m willing to compromise. And honestly, not having the laundry in the basement will already feel like a luxury.
Yes, it’ll be a comparatively short trip. And, warm.
Kitchen; sexy or practical? And, I agree that laundry upstairs would be the better solution unless you want to tote.
On another noet, took some of my girlfriends for a tour of St. Matt’s compliments of sister Karen (who they thought was a retired nun; NOT my real sister). Walked them by the “shiny” Ordinary House aka Seven Hearths…It is so nice, not to have to put my blinders on and now to proudly say; “This is where I grew up.” Yard looks wonderful and especially “Old Maggie” looks loved again. Like what you did to the camelia bush by the front porch that Daddy planted so many years past…Thanks for giving “Her” new life…and Reid, please do wash the sign out front 🙂
Zacki Murphy
Sexy or practical? Both, of course. I think this layout will be a good fit for the way we cook and eat. But I won’t be satisfied unless it’s good to look at, too. Life’s too short for ugly houses!
Agreed on the sign…it needs a serious scrubbing. It’s on that honey-do list!
The scrubbing can wait until after the dishwasher is in.
Noted.
Take all the time you want/need on that new kitchen by springing for a portable dishwasher to use in the meantime. Don’t tell me there’s no room. Squeeze it in, and Weezie will squeeze you with delight. (You can always sell it on Craig’s List when it’s no longer needed.)
You are not the first to float the idea. For now, I’m doing my best to fill in as the dishwasher.
First, I want to confirm that it is easy to chase one’s own tail when designing for oneself. Design is a process, there are always improvements that can be made. The trick is to say at some given point, that what has been designed to date will work. Much of the sexiness of a kitchen has to do with the details more than the arrangement of cabinets and appliances. Settling on the two axes settles many of the issues. The cabinet details (wood grain and stain or color of cabinets can take a blah kitchen and make it look sexy.
I do have one question about the kitchen design. Do you prefer the built-in oven in the base cabinets compared to placing it in a full height cabinet? My double ovens are in a full height cabinet. I like not having to bend over to pull out a large pan of baked ziti. This becomes more of an issue as you get older. While I never thought I would get older, it has happened in spite of me.
Regarding the laundry, I prefer to have the laundry where I am while the washer and dryer are running. While the dirty clothes are generated upstairs, I am usually downstairs doing other tasks while the laundry is in process. I prefer bringing one large load down and up once rather than running up and downstairs to move wet wash to the dryer and then running back and forth to the dryer pulling items out of the dryer before they wrinkled. Clearly, this is a major IMHO.
I figure if you can create one incredibly beautiful kitchen you probably have a second one in you as well.
Keep up the good work. It is a privilege to have access to your process. It is inspiring and reassuring that we all have similar demons to face.
Andre
Agreed on the design process. I find it a lot easier to call a design “done” when I’m working on someone else’s behalf. The more personal the design is, the harder it gets. I also agree that the details can elevate a kitchen from “meh” to spectacular.
The built-in oven you see in the rendering falls under the category of placeholder. I did this in our last kitchen and the continuity of the countertop was a nice way to make the room seem much larger, and custom fitted. I think we’re most likely to end up with a freestanding range this time around.
Thanks for the comments about the laundry. Just goes to show you that there’s no one size fits all in the world of residential design.
One more comment about the laundry: One of my favorite possessions (really) is a rolling dirty-clothes hamper/cart with three hanging bags — one bag for whites, one for medium colors, one for dark. I keep it in the master closet. When full, it’s easy to grab an already-sorted bag, Carry it to wherever the washer is, and and throw it all in. No stinky sorting, no piles of clothes all over the floor, no bending to pick up the piles or dropping pieces of clothing on the way to the washer. Take the bag back when you take back the clean, folded laundry. I also keep a small hamper in the laundry room that holds miscellaneous dirty things that can be picked out and added to a load with like items. Call me Heloise.
Sounds like a great system. We’ll have to try to implement something like that when we reconfigure the master bedroom and have parking space for a hamper cart.
Beautiful kitchen – and what a lucky guy you are to have such training – and fancy drawing tools to boot. I, on the other hand, have all the skills to build anything- but on more than one occasion have torn out completed rooms just because a better idea came to mind. And I agree – put the laundry room closest to where you are most of the time. Enjoying your blog.
All the design skills in the world are useless without people who can get things built. I love to dabble in both ends – hopefully I won’t embarrass myself once I start swinging the hammer.
Googling and found your blog… couldn’t click to the next thing… so I read… 🙂 I am a kitchen designer and I couldn’t help but read and study your kitchen design blog. I am curious now about your first kitchen and want to google IT now… googling is addictive. Anyhoo.. .
I love your kitchen plan you’ve (so far) decided on… the only thing I would pose you to ponder is the placement of the refrigerator and the number of times you go to the refrigerator while preparing a meal, snack, etc. if you have to go all the way around that wonderful table every time you want to get some ice, grab the milk, put up the milk, grab the cheese, put up the cheese, etc. if you are preparing a meal between the sink and the range… you will want to take a chainsaw to that thing! Going around a corner of an item will be much more frustrating than walking a straight line… you’ll also be less likely to bump something and then drop whatever you are holding, or trip – and that’s not sexy! 😉 So, my suggestion is consider putting the refrigerator to the right of the sink, almost to the wall, but beware the doorswing and making sure you can swing the door wide enough to get out your vegetable drawers. Between the refrigerator and wall you could add a custom feature; like a 12″ wide broom closet or a 6-9″ wide custom cookbook and/or cookie sheet, cutting boards, and serving platter storage. Then, back over where we just grabbed the refrigerator from you could have a pair of french doors opening to a walk in pantry! Just about everyone would love to have one of those. (I notice you had a plan similar to this suggestion, only it looks like you also had a double oven, tall cabinet to the left of the range. A range IS more sexy than a tall oven cabinet.)
Also, minimum recommended distance from counter to counter in a kitchen walk and workway is 42″, and 48″ if you often have 2 cooks in the kitchen. Even more space behind a chair. Because your table won’t be built in, you could always push it off center – but that would drive you crazy I’m thinking. 😉 Seems your table is a bit narrow too…
But that’s cool if you’re not planning on having more than 4 people have a sit down meal. And maybe you use a chair that has no back or a short back, so that they can be pushed under the table and out of the way as much as possible.
Overall I LOVE your design – but I (as a fellow designer who is constantly trying to find the best possible solution, that elusive perfect solution) think you can make it better… at least as far as making it more functional and less frustrating while ALSO being sexy! 😉
Heather – Good eye! Everything you’ve mentioned is something that I’ve wrestled with while working through this design. I did a few scenarios with the fridge to the right of the sink. The main downside is that it would have to stay about 16″ from the wall due to an existing HVAC duct which I’ll hide in a cabinet. This puts the fridge uncomfortably close to the window and squeezes its width to 32″, which limits our options a great deal. It would also make the flow of dishes from the sink to the dishwasher to the dish cabinet a lot more circuitous.
The table is narrow and long, around 30″ x 84″. My parents have a dining table this width, so I recognize its limitations (no overstuffed centerpieces and the Thanksgiving turkey sits on the counter). The chairs will definitely be smaller in order to maximize aisle width. These are trade-offs we’re willing to make to have an eat-in kitchen.
I know the design will evolve once construction starts. Hang around and see how it turns out!